Rumah ini terlihat sempit tapi mempunyai bab dalam yang cukup lapang luas. Ya inilah rumah di lahan sempit tapi dalamnya luas.
23 Foto-foto arsitektur karya Hiroshi Tanigawa ini akan menjelaskan kepada Anda bahwa lahan sempitpun sanggup menjadi karya arsitektur mengagumkan tanpa meninggalkan fungsinya.
Bagi Anda yang sedang merencanakan sebuah karya desain arsitektur untuk mengakali lahan yang sempit namun tetap menghasilkan ruang yang tetap terasa lapang, goresan pena dan gambar-gambar berikut ini akan menjadi wangsit Anda.
Kami Nikifour Karawang ialah perusahaan kontraktor yang sanggup menjadi sobat Anda dalam menangani semua kebutuhan konstruksi baik untuk rumah kantor dan gedung kawasan bisnis Anda. Apakah lokasi Anda di Karawang atau Bekasi, kami akan siap berdikusi di lokasi Anda.
Ini ialah sebuah rumah di Horinuchi Kota Tokyo Jepang yang dibangun olehMizuishi Achitects Atelier.
Dibangun oleh kontraktor Hirano-kentseu pada area seluas 55,24 meter persegi, proyek tahun 2011 ini menerima rancangan struktural oleh insinyur Kentaro Nagasaka. Semantara itu desainer pencahayaan oleh Tatsuoki Nakajima. Foto-foto yang akan Anda lihat ini ialah karya Hiroshi Tanigawa.
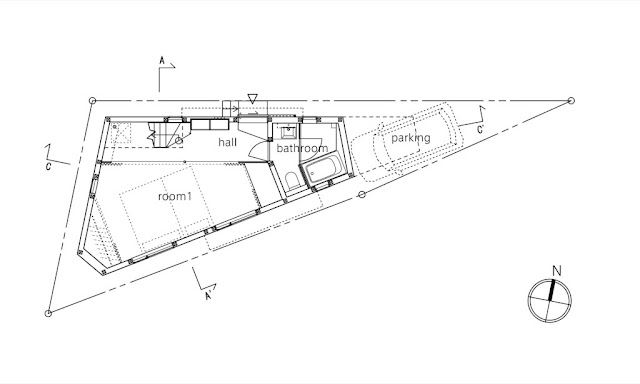
Sebenarnya rumah ini masuk dalam kategori rumah kecil. Bangunan unik ini berlokasi di are segitiga pertemuan antara jalan dan sungai. Berada di ujung jalan buntu pada awalnya rancangan ini dibentuk dalam beberapa model alasannya ialah terkait hukum lahan dan perijinan yang khusus.
Rumah ini dihuni oleh sepasang suami istri dengan satu anak perempuan.
Memang sedikit absurd mengingat lahan yang sempit dan terbatas, dan persis terletak menghadap sisi sungai dan jalan secara langsung, sang arsitek tampaknya tetap ingin menciptakan desain yagn terlihat mempunyai hubungan emosional tersendiri dengan sungai.
Bangunannya sendiri membentuk segitiga tajam yang menyesuaikan lahan yg juga segitiga. Sang arstiektur rupanya ingin memaksimalkan ruang yang ada dengan meminimalkan bab langit-langit rumah.
Meskipun tingkat 0 lantai ialah ruang pribadi, lantai tersebut menjadi pembatas dengan ruangan lain dengan tirai di pintu, tangga, penyimpanan, dll kecuali untuk kamar mandi. Ini memungkinkan penghuni untuk merasa lapang. Tingkat + 1 lantai dibagi menjadi area-area kecil dengan dinding sempit struktural yang terhubung dengan salah satu garis atap. Dengan demikian akan ada perasaan terbuka yang berbeda serta hubungan tertentu dengan sungai.
Ruang makan & dapur pada barat yang berisi tangga ialah ruangan terbesar. Ruangan ini mempunyai langit-langit tinggi.
Ruang tamu / ruang utama mempunyai langit-lagnti yang rendah dan mempunyai jendela yang terbuka lebar pada dua sisi balkon. Dan pada ujungnya ada jendela yagn terbuka ke luar. Tujuan desain plan ini ialah memperlihatkan kesan yang mengalir dan mengambang bagi penghuninya.
Sumber : http://nikifour.co.id/
























No comments:
Post a Comment